Chalet d’exception avec vue panoramique – Résidence principale au cœur du Val d’Anniviers
Situé dans le charmant hameau des Morands, au lieu-dit Panléva, ce magnifique chalet implanté sur un terrain de 1’006 m² (parcelles nos 3221 et 3222) bénéficie d’un emplacement tout simplement exceptionnel. Niché dans un quartier résidentiel calme et ensoleillé, parfaitement intégré dans un lotissement de chalets, il offre un cadre de vie rare, entre nature préservée et confort au quotidien.
À seulement quelques minutes en voiture – ou une agréable dizaine de minutes à pied – du centre de Vissoie, ce bien profite d’une vue panoramique imprenable sur les montagnes environnantes et le fond de la vallée du Val d’Anniviers. Un décor spectaculaire, propice à la détente et au ressourcement, tout en restant proche des commodités essentielles.
Une opportunité unique pour un projet de vie à l’année, dans une région prisée pour sa qualité de vie, son authenticité et ses paysages grandioses.
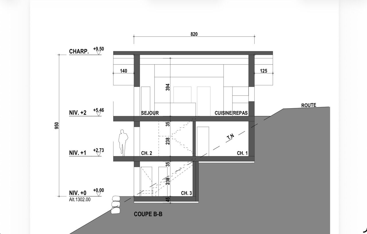
La distribution des espaces se décline comme suit :
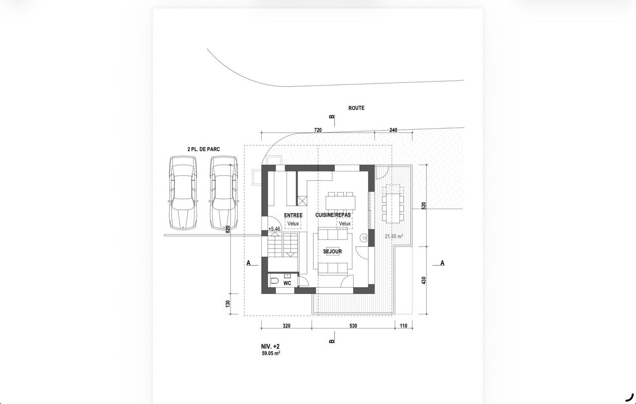
Niveau 2 :
• Entrée du chalet
• Séjour lumineux avec accès au balcon
• Coin repas
• Cuisine ouverte et équipée
• WC visiteurs
• Balcon avec espace repas, idéal pour les moments de convivialité et une vue imprenable
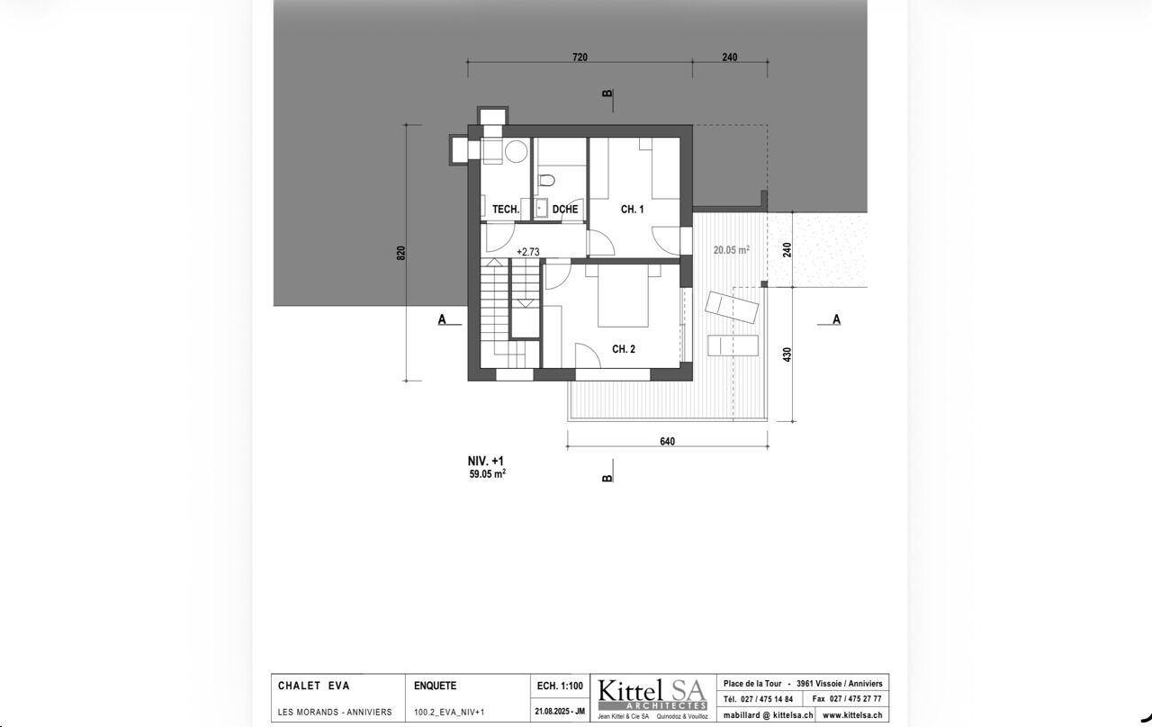
Niveau 1 :
• Deux chambres confortables avec accès au balcon
• Une salle d'eau avec douche, lavabo et WC
• Balcon avec espace détente, idéal pour les moments de relaxation avec une vue imprenable
• Local technique
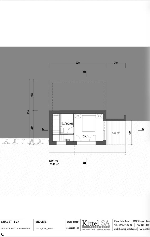
Niveau 0 :
• Une chambre confortable avec salle d'eau en suite (douche, lavabo et WC) et avec accès extérieur
Parking :
• 2 places de parc extérieures incluses en bordure de la route
️Caractéristiques principales :
- Surface de la parcelle : 1’006 m²
- Vue dégagée et exceptionnelle sur la vallée et les sommets alpins
- Exposition idéale, garantissant un ensoleillement optimal tout au long de l’année
- Accès facile en toute saison, terrain situé en bordure de route communale (déneigée en hiver)
- Environnement résidentiel paisible, au cœur d’un cadre naturel privilégié
- Situation géographique idéale
- À 5 minutes de Vissoie, carrefour stratégique menant aux stations de St-Luc / Chandolin, Zinal, Grimentz et Vercorin
- Proximité immédiate des transports, commerces et services
Le hameau des Morands est reconnu pour sa tranquillité, son authenticité et son charme alpin, en plein cœur du Val d’Anniviers
️Conditions particulières :
- Construction autorisée uniquement pour une résidence principale
- Vente exclusivement réservée aux personnes domiciliées en Suisse
- Bien non accessible aux personnes domiciliées à l’étranger
NOTES :
- Nos prix incluent les frais d'agence et TVA.
- Informations données à titre indicatif - non contractuel.
Nous vous invitons également à télécharger notre dossier PDF pour obtenir des informations détaillées sur ce bien.
Pour toute demande de photos supplémentaires, de plans ou de documents complémentaires, nous restons à votre entière disposition afin de répondre au mieux à vos attentes.
Nous serons ravis d’organiser une visite personnalisée pour vous.
Pour cela, nous vous remercions de prendre contact avec notre bureau au minimum 24 heures à l’avance afin de convenir d’un rendez-vous.
Chalet d’exception avec vue panoramique aux Morands
CH-3961 Vissoie, Chalet Eva
CHF 1'160'000.-
Caractéristiques
Catégorie
Chalet
Référence
10322
Nombre de pièce(s)
4.5
Nombre de chambre(s)
3
Nombre de sanitaire(s)
3
Surface habitable
149 m²
Surface terrain
1006 m²
Année de construct.
2026
Type de chauffage
Pompe à chaleur
Installation de chauffage
Sol
Disponibilité
A convenir
Résidence secondaire
Non autorisé
Parking disponible
Oui, obligatoire












